改造翻新30年老房子丨差别太大了
改造翻新 
家不仅筑起生活圈,更交织着彼此常伴于心。30年的老房子,经过大幅修整,拆除大部分隔断后,以简约风为主调,以低饱和彩度和柔弧线条,化显现代姿态中的简静,成为铺展全屋的手法,并逐步勾勒轮廓,对应生活习惯。
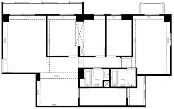
户型图
改造翻新 
改造翻新 
使用面积119㎡,三房两厅两卫格局,全屋以通用设计为主,像是便于长辈行走的安全动线,铺设超耐磨木地板,每一隅皆体现安妥自在之外,亦纳入了未来将作为新生儿出生地之设计。
玄关
改造翻新 
原户型玄关全然通透,改造后以一道深75公分双面柜做隔断,不仅化解了长形屋过于狭长的视角,还提高了居家收纳能力。
改造翻新 
玄关柜设计很简洁,白色和深灰色的碰撞,避免单一色彩的单调乏味。柜门都取消了明装门把手设计,视觉效果更整洁和谐。局部镂空设计,便于摆放小物件,边角导入圆弧收边,使量体一展稳定性,又有了丰润感相衬。
客厅
改造翻新 
拆除客厅与相邻卧室隔墙,空间被打开视觉更显开阔。新建105公分的半高墙,界定功能分区,同时也规避了风水问题。
改造翻新 
玄关过渡到客厅,一眼望穿的柔和设计,沉静且舒适。电视墙以简洁利落的手法,仅涂刷特殊涂料,一显石纹质地。取消了电视柜,空间更显开阔一些。
餐厅
改造翻新 
改造前的餐厅,常年处在昏暗的灯光下,加上老气陈旧的家具,整个空间给人感觉很是压抑。
改造翻新 
改造后的餐厅,灰白色柔和在一起,白色提亮空间,灰色点缀让空间更有高级感。拆除了部分隔断空间被打开,同步设计嵌入式储物柜,提高餐厅收纳能力。
改造翻新 
餐厨之间采用长虹玻璃隔断,透光不透影将光线引入室内,增加空间通透感。
书房
改造翻新 
改造翻新 
开放式书房,延续了浅淡色调,以带有石纹、半圆格栅线柜体铺展,两个工作位满足了日常居家办公需求。简单宽敞的设计,让居家办公更舒适轻松。
主卧
改造翻新 
改造翻新 
改造前的卧室,除了装修有些老气外,其他还是可以的,不过屋主还是重新翻修了一下,让卧室氛围更贴合自己的审美。
改造翻新 
改造翻新 
改造后的卧室,重新调整了色彩配置,木质色调成为主要用色,背景墙暖橘色点缀,让整个空间散发柔润气息。整体采用无主灯设计,给予了更简洁的视觉呈现。
改造翻新 
床尾设计了L型储物柜,提高收纳的同时也保留了采光窗,以细致的手法创造舒适氛围感。柜体局部做了陈列设计,避免单调。
儿童房
改造翻新 
次卧依旧是简约柔和设计,空间氛围感还是可以的。善用临窗面的采光优势,定制书桌柜解决了居家学习问题。为了迎合整体格调,窗帘也选择了简约款式,整体不显臃肿。
改造翻新 
衣柜直接做到顶,不仅不浪费空间,还省去了清洁的麻烦。衣柜门依旧是简洁设计,暗门把设计,不仅不影响使用,还让整个柜面更加简洁大气。